Onder bod:KNSM-Laan 737, 1019 LJ Amsterdam - Foto
Onder bod
+39

KNSM-Laan 737 1019 LJ Amsterdam € 749.500,- k.k.

  • Appartement
  • 2 kamers
  • 1 slaapkamer(s)
  • 1 badkamer
  • Bouwjaar 1993
  • 106 m² gebruiksoppervlakte
  • B Energielabel B

Beschrijving

**English version below** Zonnige, moderne 2, voorheen 3 kamer maisonnette woning met een Loft gevoel en een geweldig uitzicht over het IJ! De recentelijk geplaatste woonkeuken met een geweldig kookeiland en de moderne badkamer maken dat je het hier waarschijnlijk snel naar je zin zult hebben. Met mooi weer kan je genieten van het heerlijke zonnige en knusse terras dat op het zuiden is gelegen. De woning beschikt bovendien over een EIGEN PARKEERPLAATS in de garage en een separate berging in de onderbouw.

Dit fijne appartement is gelegen op een toplocatie op het populaire, door water omringde KNSM-Eiland.

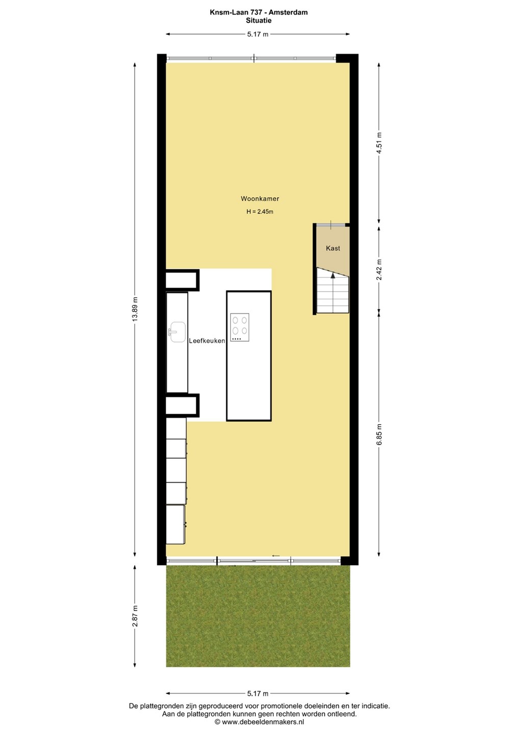
Indeling
Binnenkomst in het pand via de algemene hal met brievenbussen. Lift of trap omhoog naar de eerste verdieping naar het appartement. Ga door de voordeur en je staat in de open gang met direct uitzicht op de slaapkamer en het IJ. Aan je linkerhand tref je de wasruimte. De luxe badkamer is helemaal van deze tijd en is uitgerust met douche, luxe verwarmde spoel wc, een dubbel wastafelmeubel, inloopdouche en sun shower. Loop je verder dan kom je in het lichte slaapgedeelte met een hele grote, beweegbare inloopkast. Via de trap bereikt je de onderliggende woonverdieping, een prachtige ruimte met een geweldig uitzicht over het IJ.

De eyecatcher van deze woonverdieping is de centraal geplaatste keuken. Deze riante keuken is voorzien van heel veel opbergruimte, een kookeiland, een XL inductieplaat , koelkast en een losse koel-vriescombinatie en natuurlijk een vaatwasser. Aansluitend aan de keuken vind je het heerlijke ruime terras op het zonnige zuiden dat te betreden is middels openslaande deuren. Door de gehele woning ligt een massieve houten vloer.

Omgeving
Dit appartement ligt in het Oostelijk haven gebied, een populair gebied met een goede mix van rust, groen en stedelijke voorzieningen. Je treft hier leuke horeca zoals Café Kanis & Meiland met terras aan het water. Restaurant De Kompaszaal biedt een panoramisch uitzicht over het IJ en bij de Hoxton kan je terecht voor een heerlijke cocktail. Maak je een wandeling langs de kade of loop naar de Borgortuin waar je heerlijk kan picknicken en zwemmen. In de straat zelf vind je winkels zoals Sissy Boy, een bakker en een bloemenwinkel.Voor de dagelijkse boodschappen ga je naar Winkelcentrum Brazilië; hier vind je supermarkten en winkels zoals Albert Heijn, Jumbo, Gall&Gall, Etos, biologische supermarkten maar ook de slager en de visboer. Elke woensdag is er in het Oostelijk Havengebied een biologische markt. De bereikbaarheid is ook heel goed. Met de fiets sta je binnen 15 minuten op Amsterdam Centraal en om de hoek brengt de pont je naar Amsterdam Noord. Uitstekende verbindingen met het openbaar vervoer brengen je in in een mum van tijd naar verschillende plekken in de stad. Door de Piet Heintunnel rij je gemakkelijk de ring A10 op.

Vereniging van eigenaren
De vereniging van eigenaren is gezond en actief. Er is een meerjaren onderhoudsplan aanwezig en de maandelijkse bijdrage is € 264,00

Grondsituatie
De woning is gelegen op erfpachtgrond van de gemeente Amsterdam. De huidige canon is afgekocht tot 31 oktober 2041. De erfpacht is vastgeklikt vanaf november 2041en omgezet naar eeuwigdurende erfpacht.

Samengevat

- Zeer compleet 2/3 kamer appartement van 104 m².
- Grote woonkeuken met kookeiland.
- Terras aan de zonnige zuidkant.
- Prachtig uitzicht over het water en de voorbij varende boten.
- Lift in het pand aanwezig.
- Eigen parkeerplaats in de garage.
- Eigen berging aanwezig in de onderbouw.
- Oplevering in overleg.

Zelf zien en ervaren? Neem dan snel contact met ons op voor een bezichtiging!

Sunny, modern 2, formerly 3 room maisonette with a Loft feel and a great view over the IJ! The recently renovated kitchen with cooking island and modern bathroom will probably make you feel at home here quickly. When the weather is nice, you can enjoy the lovely sunny and cozy terrace that is located on the south. The house also has its OWN PARKING SPACE in the garage and a separate storage room in the basement.

This nice apartment is located in a prime location on the popular KNSM Island surrounded by water.

Layout
Entrance into the building via the general hall with mailboxes. Elevator or stairs up to the first floor to the apartment. Go through the front door and you are in the open hallway with a direct view of the bedroom and the IJ. On your left you will find the laundry room. The luxurious bathroom is completely up-to-date and is equipped with a shower, luxury heated flush toilet, a double washbasin, walk-in shower and solar shower. If you walk further, you will enter the bright sleeping area with a very large, movable walk-in closet. Via the stairs you reach the underlying living floor, a beautiful space with a great view over the IJ.

The eye-catcher of this living floor is the centrally located kitchen. This spacious kitchen is equipped with a lot of storage space, a cooking island, an XL induction hob, fridge and a separate fridge-freezer combination and of course a dishwasher. Adjacent to the kitchen you will find the lovely spacious terrace on the sunny south that can be accessed through French doors. There is a solid wooden floor throughout the house.

Surroundings
This apartment is located in the Oostelijk haven area, a popular area with a good mix of peace, greenery and urban facilities. You will find nice restaurants here such as Café Kanis & Meiland with a terrace on the water. Restaurant De Kompaszaal offers a panoramic view over the IJ and at the Hoxton you can enjoy a delicious cocktail. Take a walk along the quay or walk to the Borgortuin where you can have a picnic and swim. In the street itself you will find shops such as Sissy Boy, a bakery and a flower shop. For your daily shopping you go to the Brazil Shopping Centre; here you will find supermarkets and shops such as Albert Heijn, Jumbo, Gall & Gall, Etos, organic supermarkets but also the butcher and the fishmonger. Every Wednesday there is an organic market in the Eastern Docklands. The accessibility is also very good. By bike you can be at Amsterdam Central Station within 15 minutes and around the corner the ferry takes you to Amsterdam Noord. Excellent connections with public transport take you to various places in the city in no time. Through the Piet Heintunnel you can easily drive onto the A10 ring road.

Owners' Association
The owners' association is healthy and active. There is a multi-year maintenance plan and the monthly contribution is € 264.00

Land situation
The house is located on leasehold land from the municipality of Amsterdam. The current canon has been bought off until October 31, 2041. The leasehold has been fixed from November 2041 and converted into perpetual leasehold.

Summary

- Very complete 2/3 room apartment of 104 m².
- Large kitchen with cooking island.
- Terrace on the sunny south side.
- Beautiful view over the water and the passing boats.
- Elevator in the building.
- Private parking space in the garage.
- Private storage room available in the basement.
- Delivery in consultation.

Want to see and experience it yourself? Then contact us quickly for a viewing!

Kaart

Kenmerken

Overdracht

Referentienummer
166
Vraagprijs
€ 749.500,- k.k.
Servicekosten
€ 264,-
Status
Onder bod
Aanvaarding
In overleg
Aangeboden sinds
Donderdag 10 april 2025
Laatste wijziging
Maandag 30 juni 2025

Bouw

Type object
Appartement, maisonnette
Woonlaag
1e woonlaag
Soort bouw
Bestaande bouw
Bouwperiode
1993

Oppervlaktes en inhoud

Woonoppervlakte
106 m²
Inhoud
363 m³
Oppervlakte externe bergruimte
5 m²
Oppervlakte gebouwgebonden buitenruimte
15 m²

Indeling

Aantal bouwlagen
2
Aantal kamers
2 (waarvan 1 slaapkamer)
Aantal badkamers
1

Energieverbruik

Energielabel
B

Uitrusting

Aantal parkeerplaatsen
1
Aantal overdekte parkeerplaatsen
1
Parkeergelegenheid
Inpandige garage
Heeft een garage
Ja
Heeft schuur/berging
Ja

Vereniging van Eigenaren

Ingeschreven bij de KvK
Ja
Jaarlijkse vergadering
Ja
Periodieke bijdrage
Ja
Reservefonds
Ja
Meer jaren onderhoudsplan
Ja
Onderhoudsverwachting
Ja
Opstal verzekering
Ja

Kadastrale gegevens

Kadastrale aanduiding
Amsterdam A 7377
Omvang
Appartementsrecht of complex
Eigendomsituatie
Erfpacht
Lasten
Met afkoopoptie, afgekocht tot 31-10-2041